For Lease
Free-Standing Commercial Office/Warehouse Building with Multiple Uses
Free-Standing, Mixed Use, Office/ Warehouse/Manufacturing/ Distribution
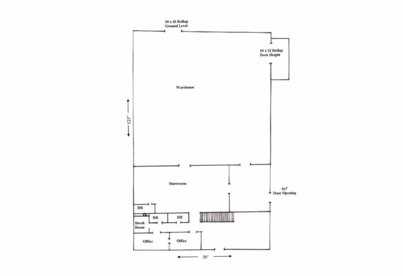
This conveniently located office/warehouse building is available for a multitude of uses including warehouse, manufacturing, light industrial, distribution, etc. The office/showroom space measures 2,530± SF and has two floors. The showroom/display area has 1,250± SF and the warehouse consists of 3,430± SF. There are two roll-ups doors: one 10′ x 10′ on ground level and one 10′ x 12′ dock high. Ceiling height is 16′ and eave heights are 14′ and 16′. Electrical is 3 phase 200 amp service, with 400 amp am available.
Contact Info
John Delchamps
John@MerrillPThomasCo.com
251-604-0615
At A Glance
7,210± TSF
$2,700 Per Month
(Modified Gross)
Convenient to I-65
Office/Showroom
2,530± SF (2 Floors)
Showroom/Display Area
1,250± SF
Warehouse
3,430± SF
2 Dock Doors
B-2 Zoning



